I am elated to share with you on this potential development 35 Gilstead with you. Please do not hesitate to enquire more or arrange an appointment with me. I look forward to hear from you soon, thank you!
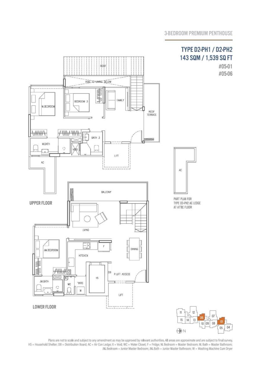
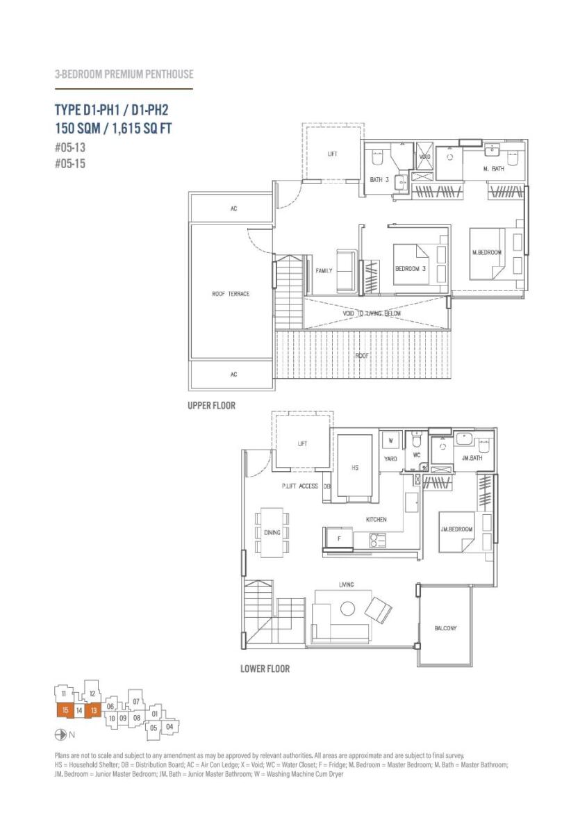
Proposed 3 blocks of 5- Storey residential apartments with an attic and basement, swimming pool and communal facilities.

































