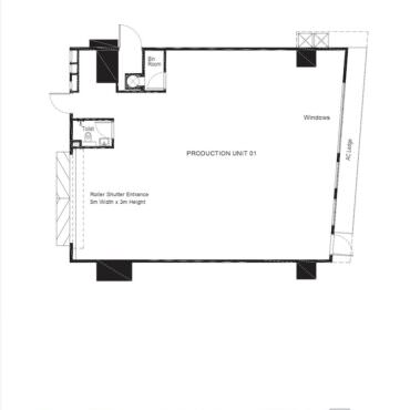
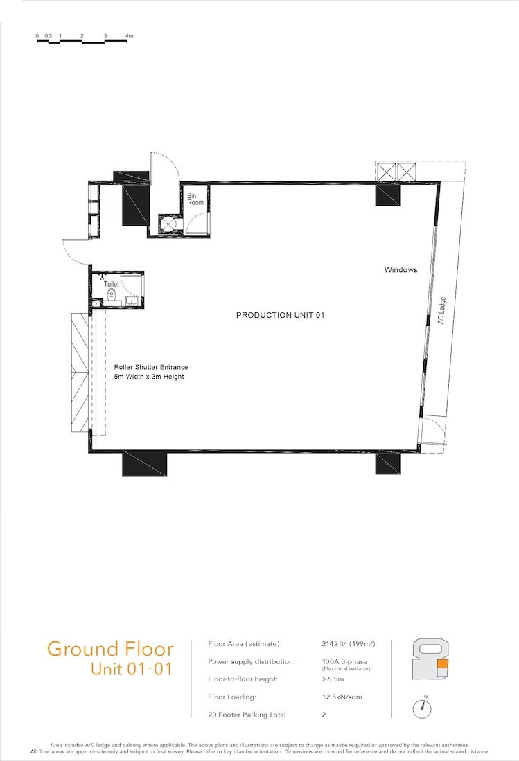
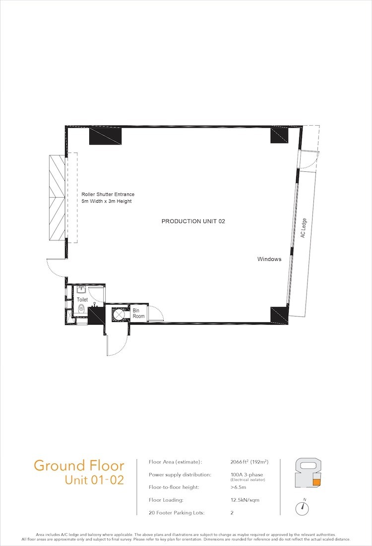
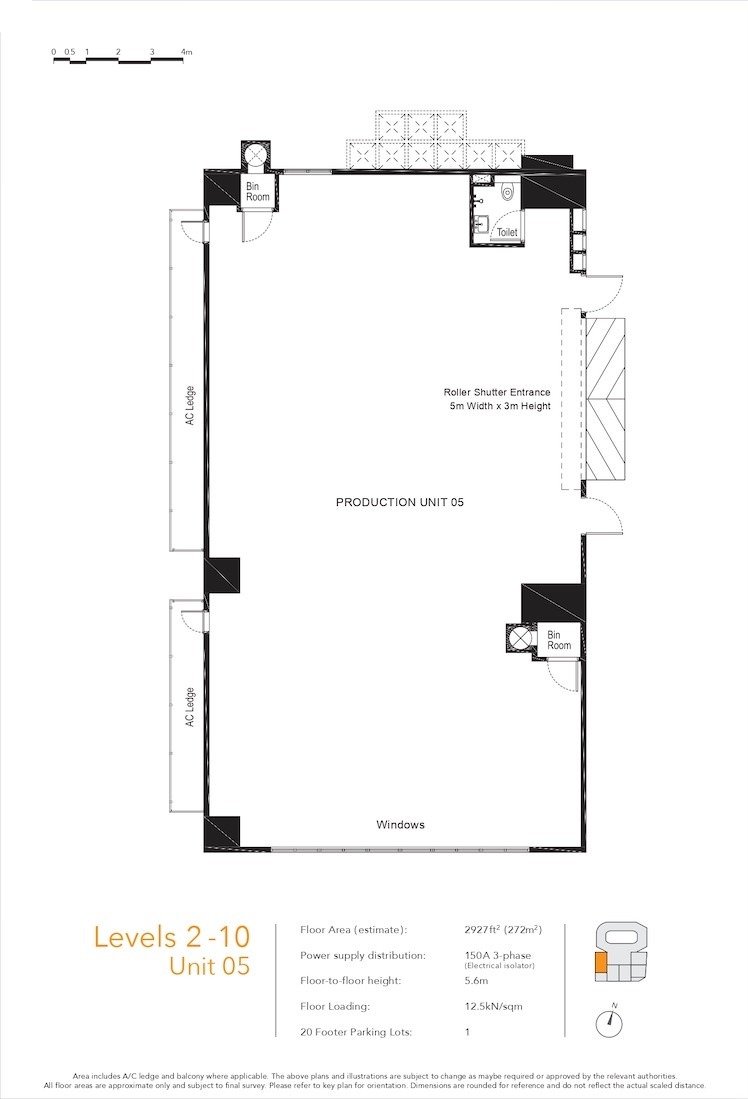
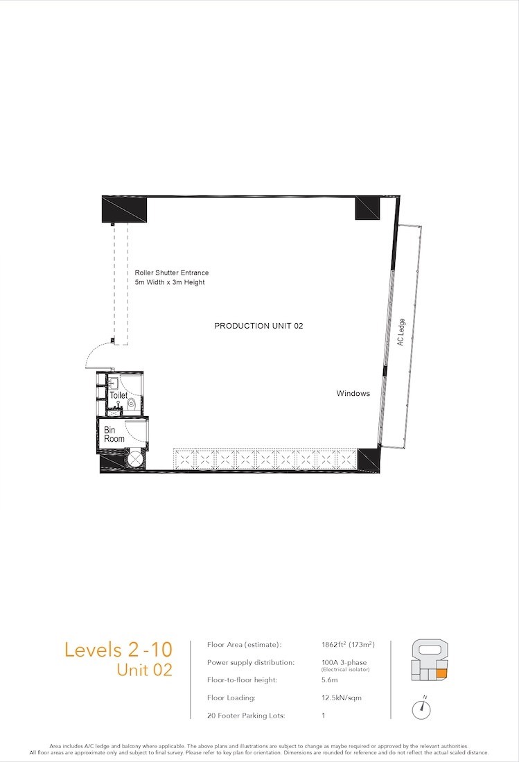
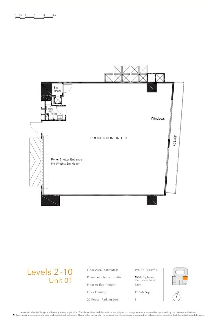
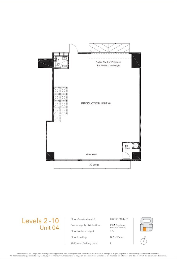
Freehold Ramp Up B2 Food Factory
Why buy FOODFAB?
– Approx 30% Cheaper than Other Freehold Food Factory!
– No ABSD
– Freehold – Legacy for future generations
– Potential High rental yield of >4%
– Bank Loan up to 90% LTV
– Full usable space – No Void Area!
– Share and Co-Invest with family and friends!






