I am elated to share with you on this potential development Parc Clematis with you. Please do not hesitate to enquire more or arrange an appointment with me. I look forward to hear from you soon, thank you!
—
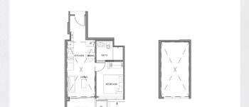
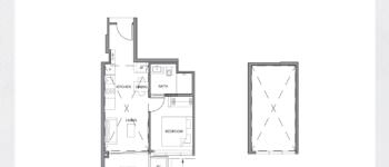
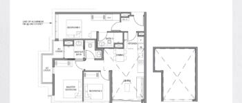
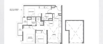
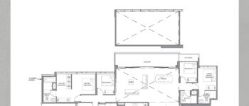
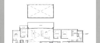
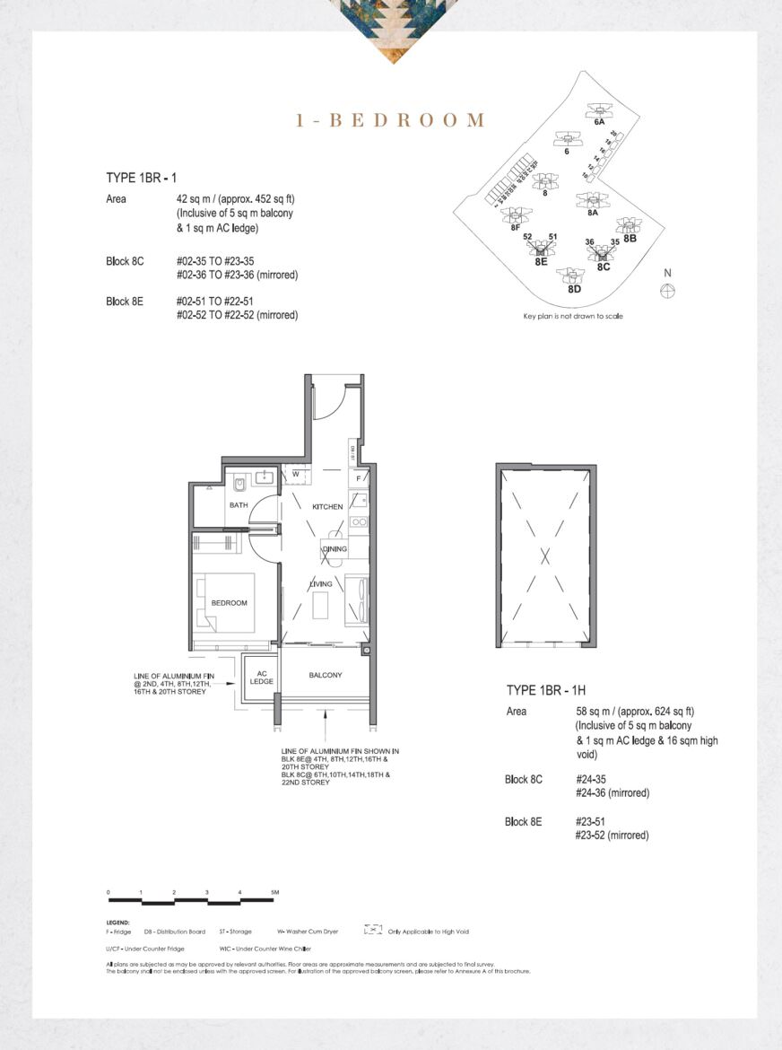
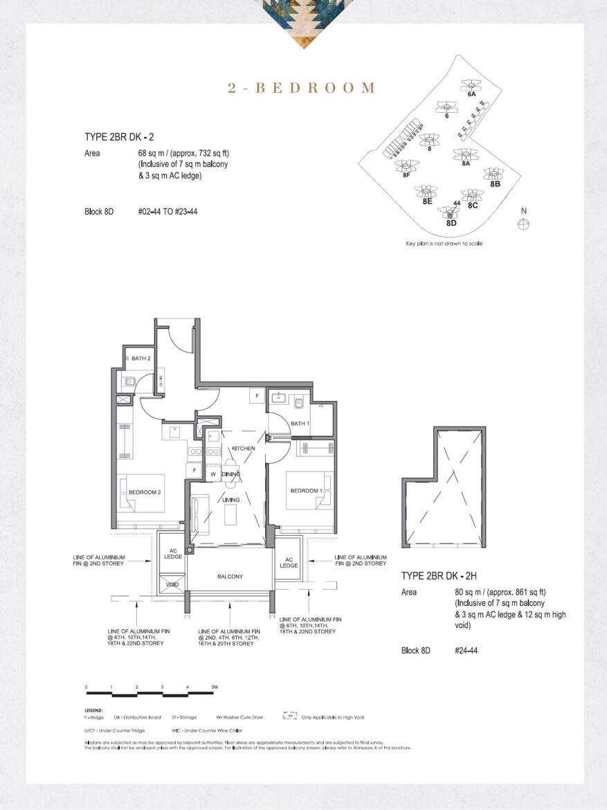
Mega site of 633,639 sft land area with 9 blocks of 24 story apartment units and 18 strata houses. Approx 400,000 sqft of facilities with 3 x 50m lap pool, beach look-alike pool, 5 club houses and 2 x tennis courts.







































































